Проект нового одноэтажного дома площадью 84 м2 А-09 - «НИКСТРОЙ»

Проект нового дома А-09

Цена*, руб: 3538000
Заказать

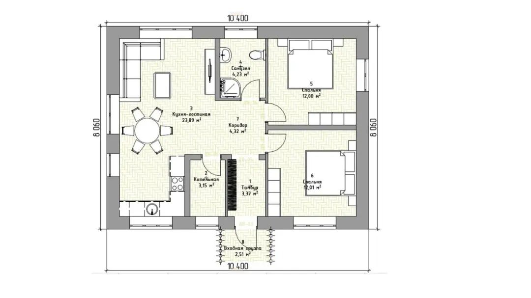
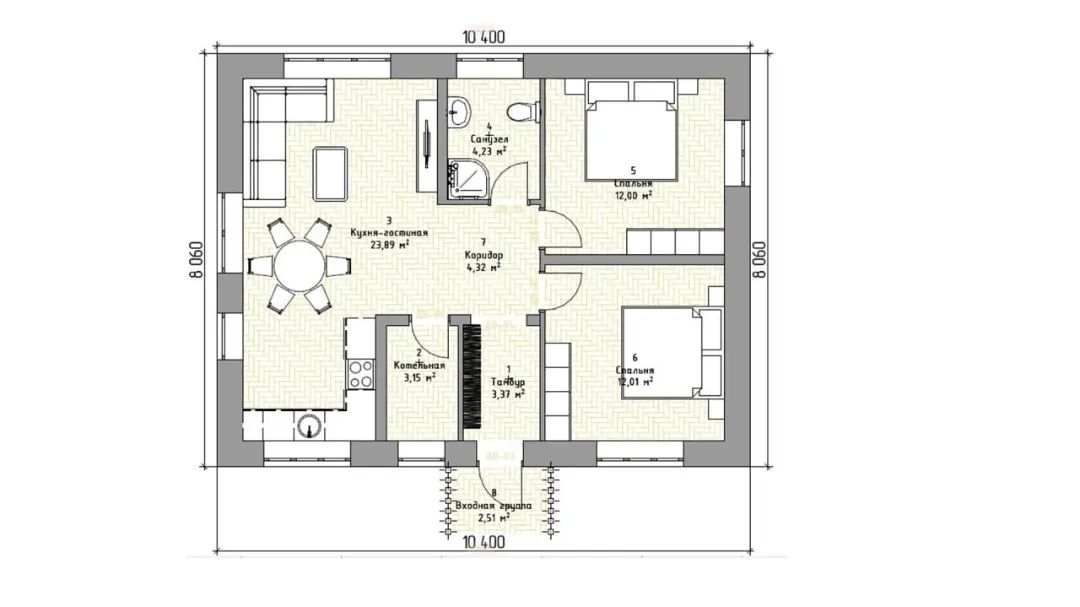
Общая площадь – 84 м2

Спальни: 2 комнаты

Санузлы: 1 санузел

Фундамент

Монолитная железо - бетонная плита 180 мм на ребрах жесткости 400х600 мм ж/б свай

Бетон марки М300 (B22,5), сертифицированный, выравнивание по СНиП, виброусадка

Засыпка основания под ребра жесткости, песок 200-250 мм (H), гидроизоляция

Армирование плиты в 2-слоя арматуры d12мм «рифлен», ростверк жесткости d12мм «рифлен», вязка по проекту КЖ на основании данных о грунтах и нагрузке дома

Закладные под инженерные коммуникации (электрика, канализация, водоснабжение)

Приемка инспектором технадзора скрытых работ, готового этапа по чек листу

Стены

Внешние стены: керамические крупноформатные блоки Porotherm 380 Termo или блоки Газосиликатных 400мм

Монтаж стен по проекту, рабочий проект КЖ

Оригинальные оконные перемычки, термовкладыши

Оригинальные смеси и доборные элементы

Работы по заливке армо-пояса и гидроизоляции

Железо-бетонное межэтажное перекрытие: монолитная плита 180мм, двойное армирование ф12 «рифлен», виброусадка, марка бетона М300 Б22,5 (без тех. зазоров по сравнению с пустотелыми плитами)

Лестница однопролетная, строительная

Крыша

Стропильная система: доска обрезная 50*200мм (сосна, ель)

Антисептирование огне-био защита

Система обрешетки / Контробрешетки

Пленки: паро-гидроизоляции

Утеплитель – Rockwool

Металлочерепица: Grand Line - цвет на выбор

Цена дома: 3,54 млн.

Цена фасада: 878 тыс.

ОКНА REHAU C 2-УХ КАМЕРНЫМИ СТЕКЛОПАКЕТАМИ

Окна REHAU с 2-х камерным стеклопакетом (3 стекла)

3-х камерный оконный профиль - 70 мм

Конфигурация открывания створок по ТЗ заказчика

Доборные комплектующие: подоконник, отлив

Энергосберегающее I – стекло, низкоэмиссионное стекло

 

ПРОЕКТИРОВАНИЕ

ЭОМ и ОВиК

ЭЛЕКТРОПРОВОДКА

Разводка скрытой электрики в гофротрубе (пожаробезопасно) Монтаж трасс электрических (от 55 точек) Устройство заземления Устройство распределительного силового щитка Монтаж защитной группы автоматики (до 36 механ.), вкл. автоматы, дифавтоматы, противопожарное УЗО, вводной выключатель Расширение базового УЗО до 70 модулей

 

КАНАЛИЗАЦИЯ

Разводка системы канализации (от 7 точек) Фановые стояки

 

КОТЕЛЬНАЯ ГРУППА

2-ух контурный котел Дымоход коаксиальный Расширительный бак Обвязка котла, система труб и подключение

 

ОТОПЛЕНИЕ

Разводка системы отопления (2-ух трубная система, от 12 точек) Радиаторы по проекту (стальн. профиль), установка, нижнее подключение

 

ВОДОСНАБЖЕНИЕ

Разводка системы холодного/горячего водоснабжения (тройниковая, от 12 точек) Установка водорозеток

 

ОТДЕЛКА

Установка внутренних не несущих перегородок, раскладка труб и кабеля 

 

КОНТРОЛЬ

Проверка внутренней службой Пусконаладочные работы всех систем Гарантия Фото отчеты

ХОД РАБОТ И ОПЛАТА

Различные варианты оплаты:

Поэтапная оплата Оплата за счет средств материнского капитала Кредитование от всех банков РФ, ставка от 6,4% Персональный порядок финансирования

 

Что включено:

Доставка и сборка Гарантия 15 лет Независимый тех. надзор, приемка работ по ЧЕК листам Техническое обслуживание дома Видеонаблюдение за стройкой в режиме онлайн (iVideon) Внесение изменений в проект - БЕСПЛАТНО

Фундамент монолитная плита
 Тип кровли  металлочерепица
 Отделка стен  фасадная плитка
 Этажность  одноэтажный
 Количество спален  3
 Количество с/у  1
Удобства   терраса, газовая котельная

Фотографии проекта

Посмотрите другие проекты

Проект двухэтажного комбинированного дома площадью 254 м2 А-029
Проект нового одноэтажного дома площадью 327 м2 А-38
Проект нового одноэтажного дома площадью 261 м2 А-05
Проект нового одноэтажного дома площадью 140 м2 А-08
Проект нового одноэтажного дома площадью 178 м2 А-03
Проект нового одноэтажного дома площадью 157 м2 А-16
Проект нового одноэтажного дома площадью 186 м2 А-24
Проект нового одноэтажного дома площадью 145 м2 А-37